房総・外房の田舎暮らし、海近リゾート、永住、別荘、エリア別・カテゴリ別など目的別に物件検索できる千葉の不動産サイト

| 会社案内 | サイトマップ |
物件番号:MB3611  茂原市粟生野 2,500万円

収益事業物件 果樹菜園付売アパート 
JR外房線永田駅6km 県道正気茂原線400m 近隣住宅のない孤立した特殊な立地です
敷地410坪 東側道路に面した大型敷地 駐車場12台 北側に約150坪果樹菜園用地あり
果樹は柿、梨、梅、洋ナシ、ビワ、ブドウ、ブルーベリー、プラム、フェイジョア栽培中
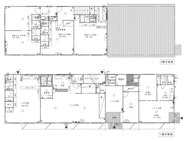
建物は平成4年築 83坪鉄骨造アパート 7世帯のうち6世帯賃貸中でほかオーナー利用
元作業所施設をアパートに改装し屋根に太陽光発電設置 売電収入含め現況利回り10.8%

  東南側外観   東側外観
  北東側外観   北側外観
  北西側外観   建物の様子 元作業所の鉄骨造2階建  東側
  東南側   南側
  南西側   西側
  北西側   北側
  北東側   東側の進入路と駐車場
  建物南側敷地まで車の進入可能
  北側の駐車場
  物置付
  北側の果樹菜園用地   敷地周囲に色々な果樹が栽培されてます
  150坪ほどの広いスペースです   
  作業中にくつろげる東屋あり
  東側接道道路と周囲の環境    周囲は太陽光発電所と雑木林に囲まれています
  オーナー利用の105号室内部

配置図、間取り図










地    図

物件種目 売アパート 建ペイ率/容積率 60%/200%
価格 2,500万円 接道状況 東側公道 
所在地 茂原市粟生野 駐車場 有 12台分 
交通 JR外房線永田駅 6km 現況 7室中6室入居(105号室オーナー利用)
土地面積 1,357u(410.49坪) 設備 東京電力、公営水道、PG、浄化槽
建物面積/間取 276.99u(83.78坪)/7世帯   態様 仲介
築年月/構造 平成4年/鉄骨造スレート葺2階建 コメント 年収 家賃213.6万、太陽光57万
現状利回り 10.8%
都市計画/用途地域 非線引/無指定 


詳しい地図、周辺施設はこちら↓


Copyright (C) 2006 NBhome All right reserved.