 |
物件番号:IM1011 一宮町一宮 3,580万円 |
 |
中古物件 海近の築浅平家住宅
JR外房線上総一ノ宮駅2.5km 県道飯岡一宮線300m 一宮海岸900m 海徒歩圏エリア
街道からひとつ入った閑静な別荘住宅地 新しい住宅が連なり明るい雰囲気の街並み
敷地133坪 北西側道路に面した東西に長い敷地 南側隣地は無償でドッグラン利用中
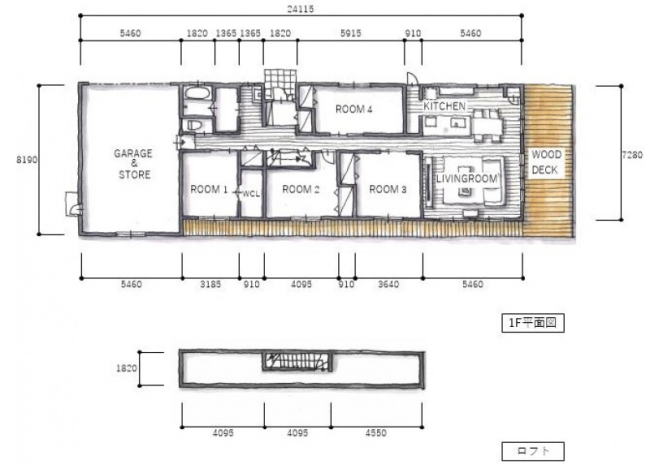
建物平成30年築 54坪4LDK+ロフト+ガレージ店舗 築浅の事業利用可能な平家住宅
薪ストーブ付リビング ウッドデッキと外シャワー ガレージのカウンター内は飲食調理用設備あり |
 |
 |
| 東南側外観 |
南側外観 |
 |
 |
| 南西側外観 |
東側外観 |
 |
 |
| 北東側外観 |
北側外観 |
 |
 |
| 北西側外観 |
4LDK平家住宅 |
 |
 |
|
ガレージ店舗 |
 |
 |
| 東側ウッドデッキテラスの様子 |
|
 |
 |
|
|
 |
 |
| デッキに外シャワー付 |
駐車場の様子 |
 |
 |
|
|
 |
 |
| 南側隣地を無償利用中 柵で囲ったドッグラン |
|
 |
 |
|
|
 |
 |
|
|
 |
 |
| 北側接道道路と周囲の街並み |
|
 |
 |
| 玄関入口 |
|
 |
 |
| LDKの様子 |
|
 |
 |
| |
リビングの薪ストーブ |
 |
 |
| ウッドデッキテラスからリビングの様子 |
アイランドキッチン |
 |
 |
|
|
 |
 |
| 中央廊下 |
洗面所 |
 |
 |
| 浴室 |
トイレ |
 |
 |
| 居室 |
ガレージ内 カウンターの内部は飲食調理室 |
 |
|
| ロフトへの階段 |
|
| 配置図、間取り図 |


|
| 地 図 |
 |
|
| 物件種目 |
中古物件 |
建ペイ率/容積率 |
60%/200% |
| 価格 |
3,580万円 |
接道状況 |
北西側公道 |
| 所在地 |
長生郡一宮町一宮 |
駐車場 |
有 |
| 交通 |
JR外房線上総一ノ宮駅 2.5km |
現況 |
居住中 |
| 土地面積 |
442.37u(133.81坪) |
設備 |
東京電力、公営水道、都市ガス、浄化槽 |
| 建物面積/間取 |
178.76u(54.10坪)/4LDK+店舗 |
態様 |
仲介 |
| 築年月/構造 |
平成30年9月/木造瓦葺平屋建 |
コメント |
海徒歩圏のガレージ付平家住宅 |
| 都市計画/用途地域 |
非線引/無指定 |
詳しい地図、周辺施設はこちら↓
|
|