房総・外房の田舎暮らし、海近リゾート、永住、別荘、エリア別・カテゴリ別など目的別に物件検索できる千葉の不動産サイト

千葉 不動産・物件【エヌ・ビー・ホーム】 | 会社案内 | サイトマップ |
物件番号:IM1000 一宮町一宮 4,080万円

収益事業物件 海近街道沿いの売店舗住宅
JR外房線上総一ノ宮駅約2.1km 県道飯岡一宮線通りに面した街道沿い 一宮海岸350m
敷地200坪 西側県道の通りに面した整形地 通り側に広い駐車場スペース 奥に庭あり
建物は昭和49年築飲食店舗と奥に続く昭和59年築住宅 住みながら店舗営業できます 

  県道の通りからの様子 南西側外観   同じく西側外観
  北西側外観   左側店舗部分と右側住居部分
  飲食店舗の様子
  奥の平家住宅
  駐車場の様子
  奥の住居側の庭   ビーチラインの通りと外観

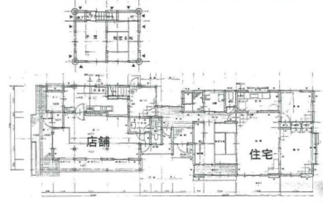
配置図、間取り図










地    図

物件種目 中古物件 建ペイ率/容積率 60%/200%
価格 4,080万円 接道状況 西側約8.2m公道
所在地 長生郡一宮町一宮 駐車場
交通 JR外房線上総一ノ宮駅 2.1km  現況 居住中 
土地面積 662.12u(200.29坪) 設備 東京電力、公営水道、浄化槽
井戸
建物面積/間取 162.08u(49.02坪)/5LDK+店舗 態様 仲介
築年月/構造 昭和49年6月/木造2階建 コメント ビーチラインに面した店舗住宅
都市計画/用途地域 非線引/無指定


詳しい地図、周辺施設はこちら↓


案内図
Copyright (C) 2006 NBhome All right reserved.